In collaboration with Aaron Argyle, Casey Copier, and Danielle Frohn
Fabrication Details / Exploded Axon
In collaboration with Daniel Lofgren
Parti
Sectional Model
View of main entrance/model
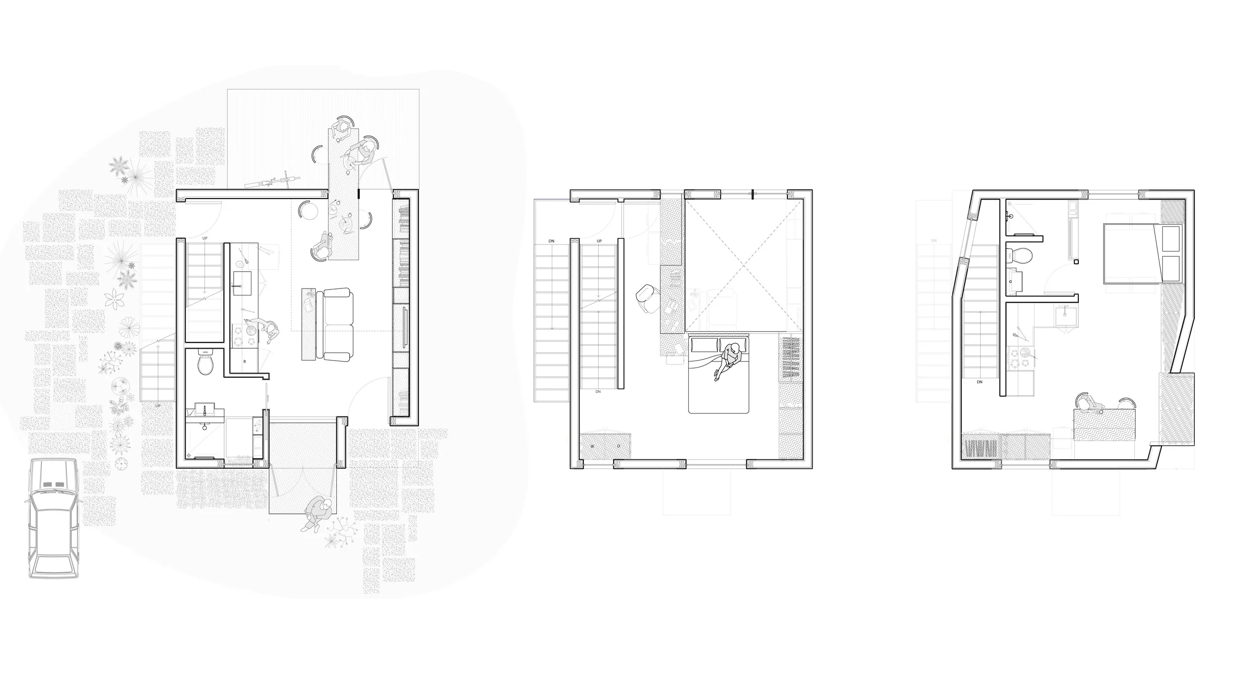
First floor plan/ski and other equipment rental//lounge area & seating
Second floor plan/cafe//kitchen//offices
Yale School of Architecture
Team D Submission
Designers: Caitlin Thissen, Charles Kane, Madelynn Ringo, Seokim Min, Cynthia Hsu, Anne Ma, Anthony Gagliardi, Lila Jiang Chen